Descripción
Con el curso de AutoCAD Plant 3D BONIFICADO / SUBVENCIONADO / GRATIS aprendes a identificar cuáles son los recursos necesarios para comenzar un proyecto en AutoCAD Plant 3D, generar P&ID, vinculados al proyecto, dominar el enrutamiento de tuberías en 3D, realizar conexionados de equipos e insertar componentes en línea.
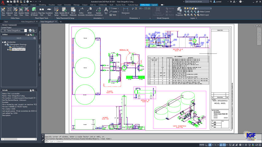
Ejercicios del curso
A continuación, tienes una muestra de algunas de las tareas realizadas por los alumnos del curso de AutoCAD Plant 3D
Contenido del curso bonificado de AutoCAD Plant 3D
- Conceptos básicos de dibujo técnico
- Proyectos
- Crear un nuevo proyecto
- Abrir un proyecto
- Project Manager
- Interfaz de AutoCAD Plant 3D
- Espacios de trabajo
- Cinta
- Project Manager
- Paleta Properties
- Paleta Spec Viewer
- Shortcut menus
- Grips
- Tooltips
- Menú Application
- Work History Dialog Box
- Cuadro de diálogo Assign Tag.
- Control de la visualización del espacio de dibujo
- Gestionar proyectos
- Configuración de proyectos
- Class Definition para los objetos de la planta
- External Property Mapping
- Formatos de etiquetas (TAG)
- Configuración de Anotación
- Configuración líneas del dibujo P&ID
- Configuración del modelo 3D
- Configuración de dibujo isométrico
- Configuración de dibujos ortográficos
- Dibujos P&ID
- Interpretar un P&ID
- Líneas esquemáticas
- Los equipos
- Los componentes
- Diferencia entre una etiqueta y una anotación
- Drawing Check
- Agrupación de Líneas (SLINE)
- Conectores fuera de página (OPCs)
- Pines e indicadores de dirección de flujo
- Equipos
- Crear equipos de un patrón existente
- Crear Boquillas (Nozzles)
- Modelado de equipos
- Convertir objetos de AutoCAD a Equipo
- Tuberías
- Especificación de Tuberías
- Número de líneas de tuberías
- Trazado de tuberías
- Compass y Snaps
- Tubería inclinada
- Curvas de tubería
- Iniciar el Trazado de la tubería desde un equipo
- Crear tuberías a partir de objetos de línea central
- Cerrar una tubería con en un punto abierto
- Cambiar el diámetro o especificación de la tubería
- Componentes de tuberías
- Colocación de componentes
- Colocar un accesorio desde Spec Viewer
- Válvulas
- Válvulas Multiport (higiénicas)
- Manguito de Válvula Mixproof
- Colocar una válvula desde Spec Viewer
- Conexiones de tuberías
- Soportes de tuberías
- Dimensiones del soporte del tubo
- Soportes de tubería y tuberías inclinadas
- Crear un soporte de tuberías desde un bloque de AutoCAD
- Estructuras
- Presentación estructural
- Cuadrícula estructural
- Zapatas
- Perfiles
- Escaleras
- Placas
- Explotar un perfil estructural
- Visualización de proyectos
- Rendimiento de visualización
- Uso compartido de dibujos
- Copia y cambiar el nombre dibujos
- Compartir dibujos
- Exportar un dibujo para AutoCAD
- Validación de proyectos
- Validación de dibujos P&ID
- Validación de modelos 3D
- Validación de proyecto
- Dibujos isométricos
- Los dibujos Isométricos
- Estilos y temas en Isométricas
- Dimensiones de referencia en Isométricas
- Migrar un dibujo
- Planos Ortho
- Planos Ortho
- OrthoCubes
- Tabla de lista de materiales y anotaciones
- Administrador de datos
- El administrador de datos
- Crear una vista personalizada en el Administrador de datos
- Trabajar con filtros en el Administrador de datos
- Informes de Data Manager
- Report Creator
- Uso de Report Creator
- Configuración de informes
- Colaboración en la nube
- Sincronización de proyectos
- Trabajar con archivos de proyecto de colaboración
Idioma
Español
Software
El curso incluye una licencia educativa del software, comprueba que también incluye AutoCAD Plant 3D.
Duración
100 horas
Modalidad
- Teleformación / online a través de nuestra plataforma https://www.portaligf.es.
- Por supuesto también lo puedes hacer en modalidad presencial en nuestras instalaciones o en tu empresa consulta las condiciones.
Horarios
- El curso BONIFICADO AutoCAD Plant 3D, lo puedes realizar desde tu casa o lugar de trabajo a la hora que quieras, sin desplazamientos, ni horarios.
- Por otro lado, si te decides por el curso presencial, nos adaptamos a tus horarios, pulsa aquí para más información sobre curso BONIFICADO presencial de AutoCAD Plant 3D.
Tutorías
Por supuesto que este curso BONIFICADO AutoCAD Plant 3D incluye tutorías donde puedes consultar todas tus dudas, un profesor hará un seguimiento de tu progreso.
Para ello puedes comunicarte con el profesor de diferentes métodos a escoger entre:
- En primer lugar, mediante la mensajería del curso
- Además, por teléfono: +34 981 652 118 (Te devolvemos la llamada).
- También por WhatsApp.
- Finalmente, por videoconferencia: Skype, TeamViewer, Microsoft Teams, etc.
Salidas profesionales
Por consiguiente, vistos los objetivos y los contenidos del curso, las salidas profesionales que más se ajustan son:
- Ingeniería de Proyectos.
- Búsqueda e Innovación.
- Diseño Industrial.
- Cálculo y Diseño de máquinas.
- Diseño de estructuras.
- Simulación de mecanismos.
- Oficina Técnica.
Gratis con el curso subvencionado de AutoCAD Plant 3D
Más por menos, al realizar el curso te regalamos una cuenta de Microsoft Office 365 con:
- OneDrive (1024 GB)
- Microsoft Teams
- Word online
- Excel online
- PowerPoint online
- Outlook Web Access
- Etc.
Curso de AutoCAD Plant 3D gratis
Sí, este curso PUEDE BONIFICARSE a través de FUNDAE (Fundación Estatal para la Formación en el Empleo) y como resultado puede realizar el curso de AutoCAD Plant 3D GRATIS si eres trabajador asalariado.
Por consiguiente, los alumnos de estos cursos bonificados tienen que ser trabajadores asalariados que coticen a la Seguridad Social por el concepto de formación profesional
Puesto que la formación bonificada permite a las empresas formar a sus trabajadores a coste cero, algo necesario en un mundo tan competitivo como el actual, para tener trabajadores altamente cualificados.
En consecuencia, las empresas disponen de un crédito para realizar cursos bonificados para trabajadores que no se acumula de un año para otro.
Así que pulsa en la categoría de Cursos BONIFICADOS para consultar nuestra relación de cursos que se pueden bonificar.
Resumiendo, nosotros realizamos todos los trámites ante FUNDAE sin ningún coste a mayores.
Finalmente, puedes consultar ahora tus dudas por
WhatsApp: +34 676134956
¿Qué empresas están obligadas a cumplir un porcentaje de cofinanciación la formación?
Las empresas participarán con sus propios recursos en la financiación de la formación de sus trabajadores según los porcentajes mínimos que, sobre el coste total de la formación, se establecen a continuación en función de su tamaño:
- 1 a 5 trabajadores: Cofinanciación máxima del 0%, el curso es gratis.
- 6 a 9 trabajadores: Cofinanciación máxima del 5%.
- 10 a 49 trabajadores: Cofinanciación máxima del 10%.
- 50 a 249 trabajadores: Cofinanciación máxima del 20%.
- 250 o más trabajadores: Cofinanciación máxima del 40%.
Enlaces interés
- Fundación estatal para la formación en el empleo
- Permiso individual de Formación
- Formación para autónomos
- Formación programada por las empresas
¿Por qué realizar el curso BONIFICADO AutoCAD Plant 3D en La Coruña?
Porque el Instituto Galego de Formación le ofrece las mejores herramientas para realizar su formación de: informática, idiomas, clases de apoyo, a continuación, enumeramos algunas de las ventajas que supone realizar el curso en cualquiera de nuestros centros:
- Para empezar porque disponemos de centro propio en Culleredo, ¿Cómo llegar?
- Ten en cuenta que nuestro centro es moderno y está homologado por la Xunta de Galicia, para impartir cursos de FSE, AFD, Fundación tripartita, etc.
- Sobre todo, por la calidad en nuestra enseñanza, avalada por la satisfacción mostrada por nuestros alumnos desde 1996.
- Grupos reducidos por lo que cada alumno dispone de un ordenador.
- Profesores altamente cualificados debido a su continuo proceso de actualización de conocimientos, con experiencia profesional.
- Cuidamos al máximo la documentación que se entrega a los alumnos y siempre, que es posible, está realizada por nuestros profesionales.
- Por lo que los principales contenidos de la plataforma son propios.
- Al finalizar el curso tienes derecho a un diploma acreditativo como resultado de realizar el curso con aprovechamiento.
- Finalmente, tienes fácil acceso a los profesores del curso.
Más información sobre el curso subvencionado AutoCAD Plant 3D
También puedes consultar nuestros cursos de diseño con los que aprendes a manejar con soltura Autodesk Inventor avanzado.
Finalmente, puedes solicitar más información a través de:
- WhatsApp en el número +34 676134956
- Teléfono en el número +34 981 652 118
También en el siguiente formulario










